
Zehnhausby SPACE STUDIO
by SPACE STUDIO
Podkrovné byty
v srdci mesta
UMIESTNENIE V RÁMCI MESTA
HMOTOVÝ KONTEXT

AXONOMETRIA





Materiály

nerez

drevo - nábytok

jutový koberec

parkety
omietka

drevo - trámy
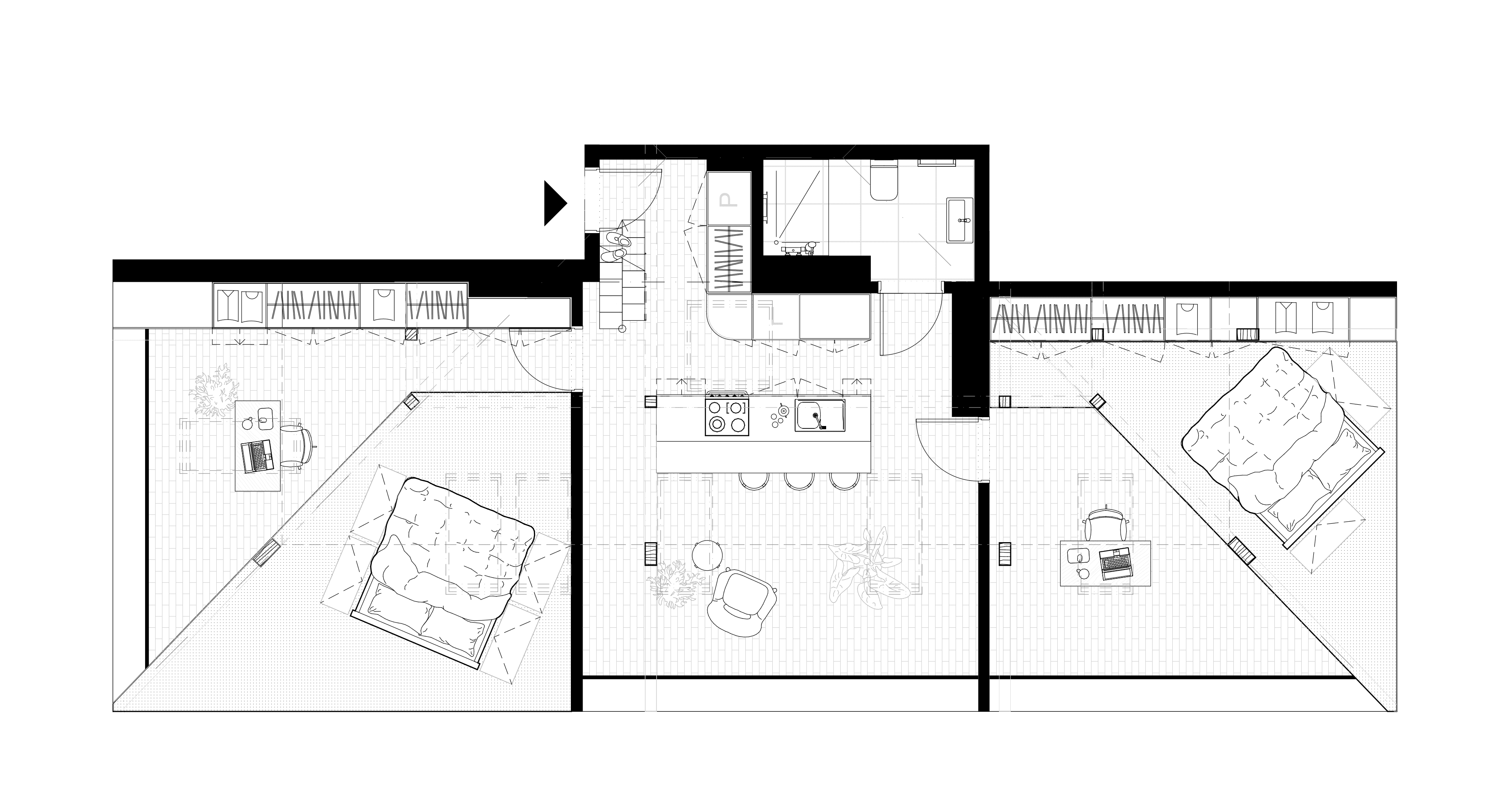
PONUKA

BYT 01
Izby
Chodba8.93 m²
Izba 0112.46 m²
Kuchyňa + obývacia izba27.88 m²
Kúpeľňa5.89 m²
Izba 0211.77 m²
Šatník3.07 m²
Celkovo70.00 m²
70,00 m²Plocha
3Izby
1Kúpeľňa





BYT 02
Izby
Chodba + Šatník3.08 m²
Kuchyňa + Jedáleň21.15 m²
Kúpeľňa4.05 m²
Plošina6.63 m²
Spálňa 0115.91 m²
Spálňa 0219.18 m²
Celkovo70.00 m²
70,00 m²Plocha
3Izby
1Kúpeľňa





Kontakt
Zehnhaus | Palárikova 10
Pre viac informácií nás kontaktujte prostredníctvom formulára vyššie.